居住中(12月中旬内覧開始予定)
写真と文章は前回募集時のものですので、現況は内覧時にご確認ください
まるで空を揺蕩うような気分の4面バルコニー
場所はJR山手線「大塚」駅のすぐそば。
とっても好立地な場所にどっしりとしたマンションがあります。
向かうは最上階の14階。
他のお部屋と違って、建物の最上階でぴょこっと出ているペントハウス的な部屋。
例えるならおじゃる丸の金ちゃん一家が住んでいるような(わかりにくいですか?)。
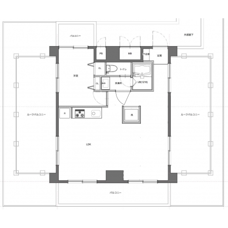
間取り図をご覧いただくとわかりますが、こちらのお部屋は4面バルコニー。
どこを見渡しても空空空。
空に囲まれたお部屋なんです。なんて贅沢!!
さらにお部屋を取り囲むはルーフバルコニー。
天気のいい日には洗濯物をズラーッと並べたいですね。
そして肝心のお部屋の内装ですが、やっぱりぐっとくる。
実はリノベーションと言っても全てが新品というわけではありません。
例えば収納や水周りの扉、こちらはもともと使っていた扉をグレーに塗り直して、取手などはそのまま使っています。
だから質感が新品では絶対出せない仕上がりになっているのです。
玄関入ったらもともと収納になっていた場所を思い切りぶち抜いて、空間を広げてみました。
そうするとお部屋に帰った時から、外の明るさを感じることができる抜け感を手に入れることができました。
とにかく全面空だから明るいし気持ちがいい。
バルコニーからはスカイツリーもほんのちょっとの東京タワーも(本当にちょびっとです)見えてしまう。東エリアから都心部、西エリアまで見渡せてしまう。
いいところがいっぱいありすぎて何をおすすめすればいいのか迷ってしまいますが、本当に最高の物件。
そしてやっぱり全部を新しくするのではなく、古きも生かしておりまぜる。
そんなアールストアらしさがたくさん詰まっているこのお部屋。
ぜひ、お部屋を愛して、生活を愛してください!
■完成までの軌跡
http://r-blogs.jp/author/renovation/6873/



































