礼金0
写真と文章は前回募集時の別室(同間取り)のものですので、現況は内覧時にご確認ください。
うっとりする眺望を横目にお料理する毎日
最寄りは大江戸線「牛込柳町駅」。
千代田線を除く都心の全地下鉄に乗り換えが可能!
利便性に優れた立地にあるタワマンのご紹介です。
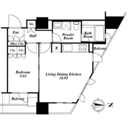
お部屋は、15Fの1LDKタイプ。
東京の景色を横目にお料理できるキッチンが魅力的でした。
昼間も夜も、うっとりする東京の景色をご堪能いただけます。
室内設備はもちろん、物件設備もとっても充実しています。
コンシェルジュサービスや、共有ラウンジ・ジム・キッズスペースを完備。
あったら嬉しい設備が揃ったタワマンでした。
利便性に優れながらも落ち着いた住環境で、新生活を始めませんか。

































